| Bezugstermin: |
01.11.2025 |
| Wohnfläche: |
77m² |
| Zimmer: |
2 |
| Mietkosten: |
Kaltmiete: 960,- €
Außenstellplatz: 30,- €
Nebenkosten: 200,- € |
| Mietkaution: |
2.970€ |
| Objektbeschreibung: |
Die gemütliche 2-Zimmer - Wohnung befindet sich im 2.OG (ohne Aufzug), einer sehr gepflegten Wohnanlage mit nur 3 Wohneinheiten. Das Haus wurde 1981 in bewährter Ziegelbauweise erstellt und ist komplett unterkellert.
Die Wohnung wurde 2025 komplett saniert. Dabei wurde das Tageslichtbad komplett erneuert und mit zeitlosen Fliesen versehen. Alle weiteren Räume wurden mit modernem Vinyl in Holzoptik ausgelegt. Der Wohn- und Schlafraum verfüget über Fernsehanschlüsse (Vodafone / Kabel-Deutschland) und eine LAN-Verteilung (Netzwerk). Für behagliche Wärme sorgt in jedem Raum die Fußbodenheizung mit Einzelraumsteuerung, die über die Gasheizung (Bj.2020) versorgt wird.
Um Energiekosten zu sparen wurde am gesamten Haus ein Vollwärmeschutz angebracht und mit modernen Fenstern mit 3-facher Isolierverglasung versehen. Ebenfalls wurde das gesamte Dachgeschoss zeitgemäß isoliert.
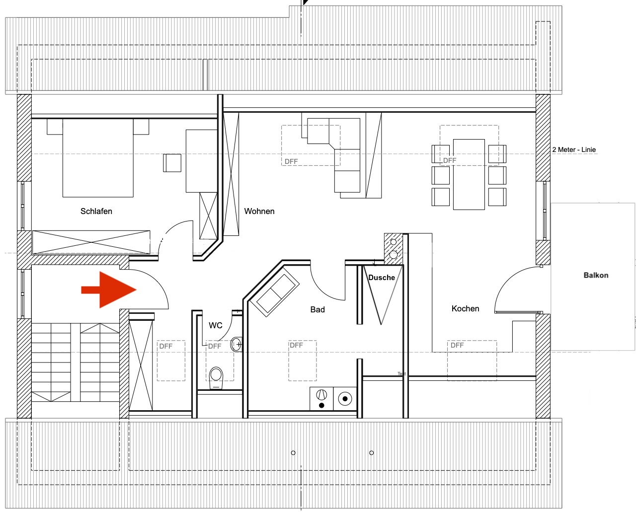
Die gut geschnittenen ca. 77 qm teilen sich wie folgt auf:
Tageslichtbad mit großer Dusche, separates WC, Schlafzimmer, großer Wohn-Ess-Küchenbereich, von dem aus der Balkon betreten werden kann (Balkon wird im Frühjahr 2026 angebaut), Garderobenbereich.
Die neue Einbauküche samt Elektrogeräten ist im Mietpreis bereits enthalten. Zur Wohnung gehört neben einem gemauerten Kellerraum auch ein Außenstellplatz (zzgl. 30,- € mtl.).
Die Räum- und Streupflicht, sowie die Treppenhausreinigung, übernimmt die Hausgemeinschaft.
Haustiere sind leider nicht erwünscht.
Voraussetzung für eine erfolgreiche Vermietung ist eine positive Schufa Auskunft ohne Negativmerkmal. |
| Ausstattung: |
* Einbauküche mit Elektrogeräten
* Vinylböden im Wohn- und Schlafzimmer (außer Bad)
Fußbodenheizung
Weiße Zimmertüren
Tageslichtbad mit großer Dusche
Waschtisch mit Unterschrank und Spiegelschrank
Handtuchtrockner & Waschmaschinenanschluß im Bad
Kunststofffenster mit 3-fach Verglasung
großer Balkon (8 qm)
Vodafone (Kabel – Deutschland) Anschluss vorhanden
- Anschlussmöglichkeiten im Wohn- und Schlafzimmer
zur Wohnung zugehöriger Keller (gemauert) mit Licht & Stromanschluss
Außenstellplatz |
| Pflichtangaben nach EnEV: |
Art des Energieausweises: bedarfsorientiert
Erstellungsdatum des Energieausweises: 08.10.2025
Baujahr Gebäude: 1981
Baujahr Anlagentechnik: 2020
wesentlicher Energieträger: Erdgas E
Energiebedarf: 123,9 kWh/(qm*a)
Effizienzklasse: D |
| Lage: |
Ergolding gehört zu den attraktivsten Gemeinden des Landkreises Landshut, da es sich trotz eines vielfältigen Angebotes an Schulen, Kindergärten, Fach- und Allgemeinärzten, Einkaufsmöglichkeiten und Unterhaltungsmöglichkeiten, wie etwa das Erlebnisbad „Ergomar“ und dem Bürgersaal, seinen ländlichen Charakter weitestgehend bewahrt hat. Aufgrund der optimalen Anbindung an das Öffentliche Verkehrsnetz, ist Landshut und der Bahnhof Landshut innerhalb kurzer Zeit mit dem Bus zu erreichen.
Auch die kurze Entfernung zur Autobahn A 92 ist hervorzuheben, da die Strecke zum Flughafen München in ca. 25 Min. zurückgelegt werden kann. |
| Entfernungen: |
nächste Bushaltestelle: 550m (Linie X2, 12, 102)
nächster Supermarkt: 700 m
Freizeitbad Ergomar: 1,3 km
Klinikum Landshut: 6,2 km
HBF Landshut: 4,6 km
Anschlussstelle A92: 3,1 km |
| Provisionshinweis: |
Bei Abschluss eines Mietvertrags wird keine Maklerprovision zur Zahlung fällig. |
| Hinweis: |
Bitte übersenden Sie uns Ihre kompletten Kontaktinformationen, damit wir schnellst möglich Ihre Anfrage bearbeiten und mit Ihnen einen Besichtigungstermin vereinbaren können. |
| Haftungsausschluss: |
Alle Angaben sind ohne Gewähr und basieren ausschließlich auf Informationen, die uns von unserem Auftraggeber übermittelt wurden. Wir übernehmen keine Gewähr für die Vollständigkeit, Richtigkeit und Aktualität dieser Angaben. |
Neueste Kommentare