| Bezugstermin: |
01.05.2026 |
| Wohnfläche: |
81m² |
| Zimmer: |
3 |
| Mietkosten: |
Kaltmiete: 1.100,- €
Außenstellplatz: 30,- €
Nebenkosten: 240,- € |
| Mietkaution: |
3.390€ |
| Objektbeschreibung: |
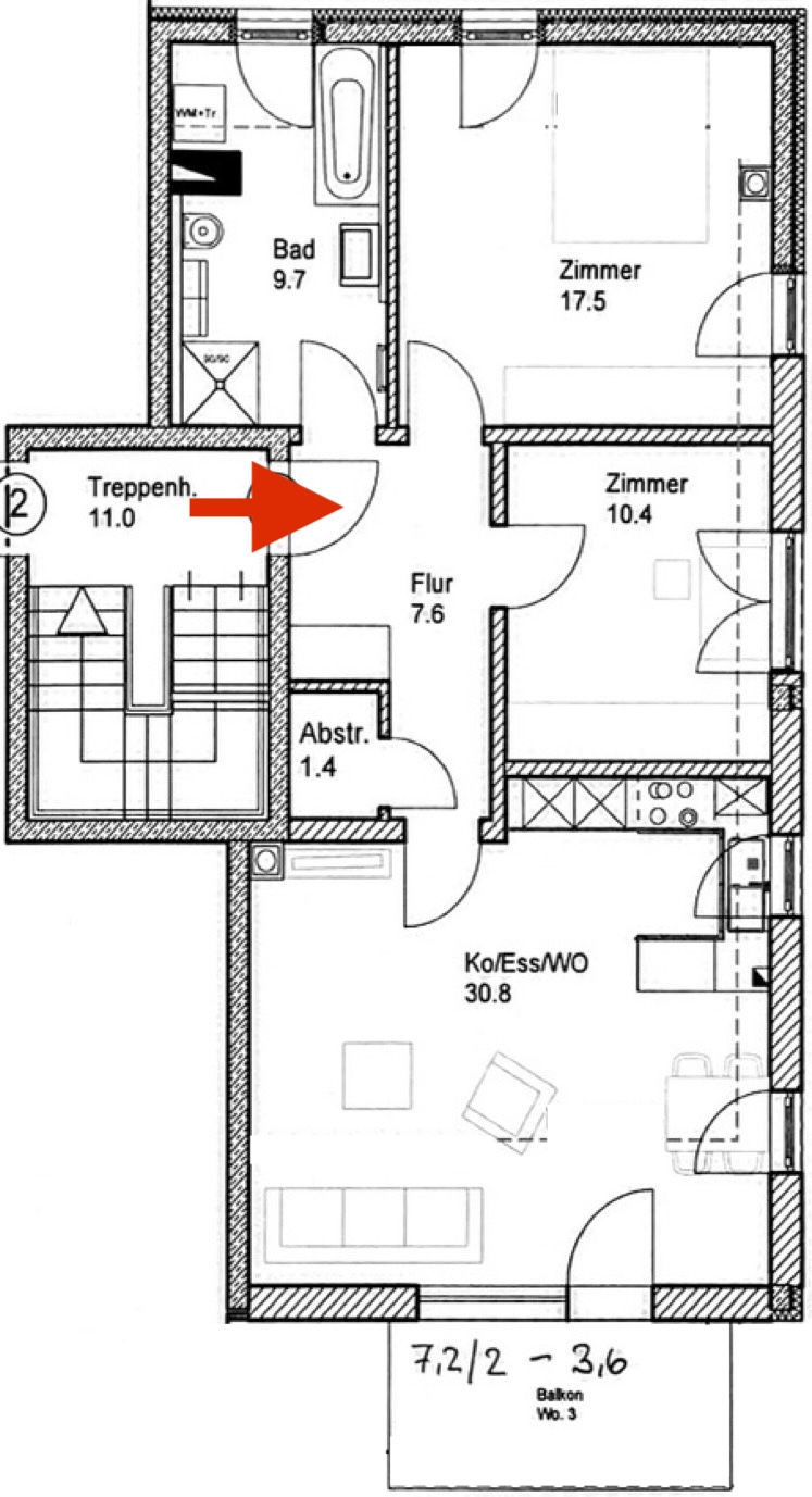
Die Wohnung befindet sich im ersten Stock (ohne Aufzug) und ist Teil einer kleinen Wohnanlage mit nur vier Wohneinheiten, die gerade in einer zentrumsnahen Wohngegend erstellt wird.
Die Wohnung zeichnet sich besonders durch die optimal durchdachte Raumaufteilung und einer sehr hochwertigen Ausstattung aus.
Die gut geschnittenen ca. 81 qm teilen sich wie folgt auf: Tageslichtbad mit Dusche und Badewanne, Schlafzimmer, Büro, Abstellraum und einen großen Wohn-Ess-Küchenbereich, von dem aus der überdachte Balkon (ca.7 m2) betreten werden kann.
Das Schlafzimmer und das Büro wird mit Vinyl in Holzoptik, alle anderen Räume mit modernen Fliesen (60 x 60) ausgestattet. In jedem Wohnraum ist ein Fernsehanschluss, der über die SAT-Anlage versorgt wird vorhanden. Ebenso ist dort eine LAN – Verteilung verfügbar, die an das Glasfasernetzwerk angeschlossen ist.
Für behagliche Wärme sorgt eine Fußbodenheizung, die für jeden Raum über Thermostate separat geregelt werden kann. Im Tageslichtbad mit Dusche und Badewanne, ist ein Waschmaschinenanschluss verfügbar. Die Kunststofffenster mit dreifacher Isolierverglasung können mit elektrischen Rollos beschattet werden.
Zusätzlichen Stauraum bietet der zur Wohnung zugehörige Keller. Ihr Auto kann auf dem Außenstellplatz abgestellt werden, der zusätzlich für 30,-€ mtl. angemietet werden muss.
Die Räum- und Streupflicht, sowie die Treppenhausreinigung, übernimmt der Hausmeisterservice.
Voraussetzung für eine erfolgreiche Vermietung ist eine positive Schufa Auskunft ohne Negativmerkmal.
Haustiere sind leider nicht erwünscht. |
| Ausstattung: |
Energieschonende Bauweise
Pelletheizung
Wasserenthärtungsanlage
Kunststofffenster mit 3-fach – Verglasung
Elektrische Rollos an allen Fenstern
Innenfensterbänke aus Naturstein
weiße Innenraumtüren mit Edelstahldrückern
Fußbodenheizung in allen Räumen
hochwertiger Vinylboden im Schlafzimmer und Büro
Fliesenboden im Wohn-Ess-Küchenbereich
moderne Fliesen im Bad (raumhoch), Flur und Abstellraum
Tageslichtbad mit Dusche & Wanne
beleuchteter Spiegelschrank
Fernsehanschluss und LAN-Verteilung in allen Wohnräumen verfügbar
überdachte Fahrradabstellmöglichkeit
Eigenes Kellerabteil
Balkon mit 7 m2
Außenstellplatz
Hausmeisterservice (bereits in den Mietnebenkosten enthalten)
|
| Pflichtangaben nach EnEV: |
Art des Energieausweises: bedarfsorientiert
Erstellungsdatum des Energieausweises: 11.09.2024
Baujahr Gebäude: 2024
Baujahr Anlagentechnik: 2024
wesentlicher Energieträger: Holzpellets
Energiebedarf: 65,8 kWh/(qm*a)
Effizienzklasse: B |
| Lage: |
Die Wohnanlage befindet sich in zentraler Lage, nahe der historischen Altstadt von Landshut, die bequem in wenigen Minuten zu Fuß oder der sehr gut ausgebauten Stadtbusverbindung zu erreichen ist. Durch die hervorragenden Verkehrsanbindungen zur Autobahn BAB92 und den öffentlichen Verkehrsanbindungen, eignet sich Landshut als idealer Lebensraum.
Neben renommierten Großunternehmen des verarbeitenden Gewerbes und des Dienstleistungsbereiches bilden leistungsstarke, innovative kleine und mittlere Betriebe das wirtschaftliche Rückgrat der Stadt.
Lehre und Studium, Forschung und Entwicklung sowie Weiterbildung, im Sinne des lebenslangen Lernens, prägen seit der Gründung im Jahr 1978 die Arbeit der Hochschule Landshut.
Landshut, eine aufstrebende Metropole in Bayern bietet auch für Sie das Richtige. |
| Entfernungen: |
nächste Bushaltestelle (Linie 5): 200 m
HBF – Landshut: 1,8 km
Innenstadt Landshut: 700 m
Autobahnanschluss A92: 5,8 km |
| Provisionshinweis: |
Bei Abschluss eines Mietvertrags ist keine Maklerprovision zur Zahlung fällig. |
| Hinweis: |
Bitte übersenden Sie uns Ihre kompletten Kontaktinformationen, damit wir schnellst möglich Ihre Anfrage bearbeiten und mit Ihnen einen Besichtigungstermin vereinbaren können. |
| Haftungsausschluss: |
Alle Angaben sind ohne Gewähr und basieren ausschließlich auf Informationen, die uns von unserem Auftraggeber übermittelt wurden. Wir übernehmen keine Gewähr für die Vollständigkeit, Richtigkeit und Aktualität dieser Angaben. |
Neueste Kommentare