| Kaufpreis: |
274.000€ |
| Kaufpreis "Stellplatz": |
Zwei Außenstellplätze: 16.000,- € (zusammen) |
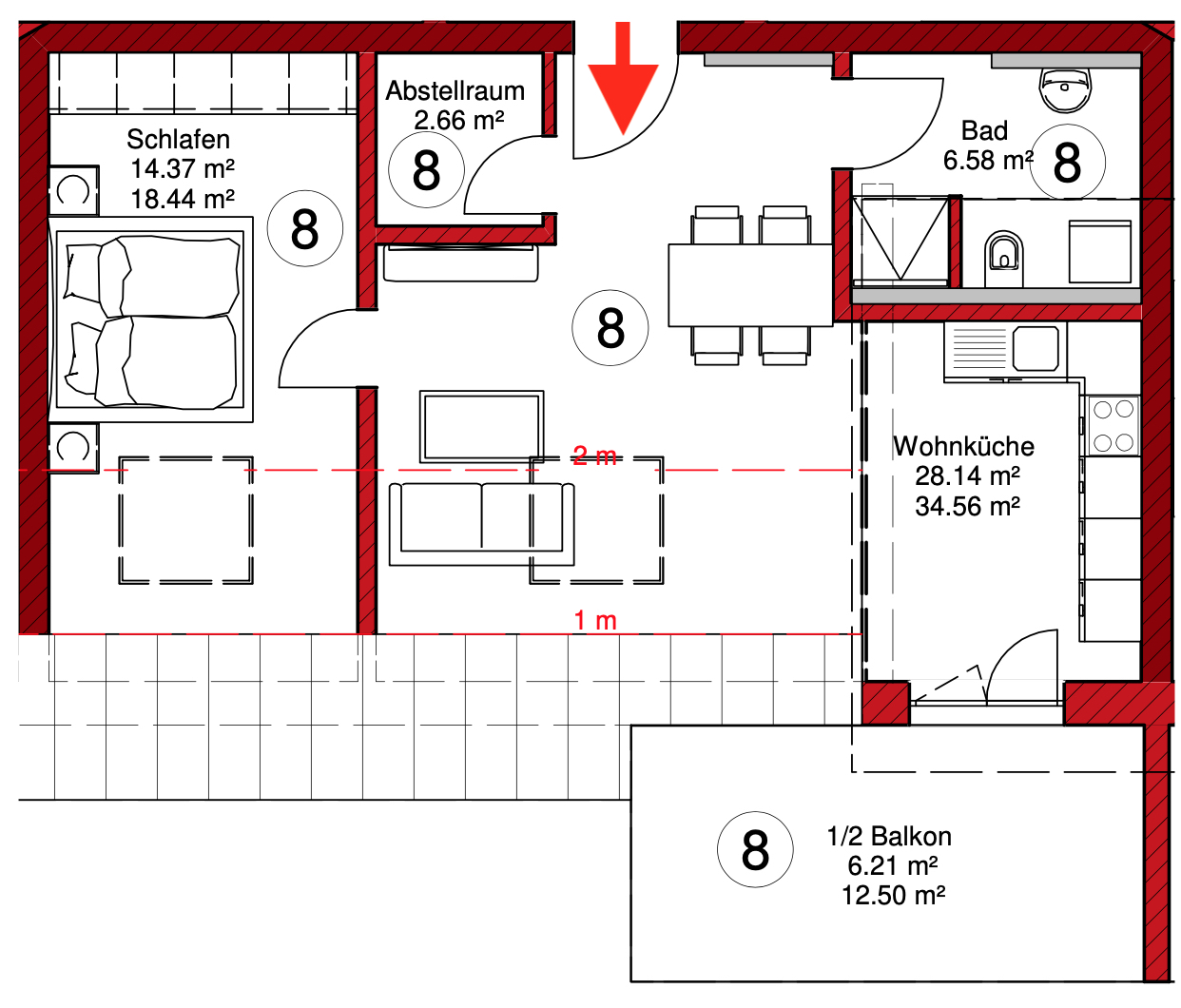
| Wohnfläche: |
57,5m² |
| Zimmer: |
2 |
| Objektbeschreibung: |
Die Wohnung befindet sich im 2.Obergeschoß (ohne Aufzug) einer modernen Wohnanlage mit nur neun Wohneinheiten, die derzeit in einer zentralen Wohngegend in Schierling erstellt wird.
Besonders hervorzuheben ist die optimal durchdachte Raumaufteilung, eine sehr hochwertige Ausstattung, die nach Ihren individuellen Wünschen gestaltet werden kann.
Hand in Hand erstellen renommierte Handwerksbetriebe aus der unmittelbaren Umgebung Ihr Eigenheim. Qualität und Zuverlässigkeit setzen dabei den Maßstab. Moderne Architektur, hochwertige Ausstattungsmerkmale, energieeffiziente Bauelemente, kompetente Ansprechpartner; all diese Bestandteile runden das Konzept zu einem stimmigen Zuhause ab.
Bei der Auswahl der verwendeten Materialien, so wie der Ausstattung wurde besonderer Wert auf höchste Qualität und Funktionalität gelegt. Auch auf Folgekosten wurde besonderer Augenmerkt gelegt. Die massive Ziegelbauweise im Verbund mit der energieeffizienten Luft- Wasser- Wärmepumpe und den ausgesuchten Bauelementen führen zu einem sehr guten Energiebedarfswert von nur 5,0 kWh/(qm*a). Dadurch können die hohen Ansprüche des Niedrigenergiestandards „KfW 40“ erfüllt werden. Die Förderung wurde bereits beantragt, auf die Sie gerne zurückgreifen können.
Durch eine hauseigene PV – Anlage werden die Heizkosten zusätzlich gesenkt.
Für behagliche Wärme sorgt eine Fußbodenheizung, die für jeden Raum über Thermostate separat geregelt werden kann. Fernsehanschlüsse, die über eine SAT-Anlage versorgt werden, sind in allen Wohnräumen verfügbar. Eine Netzwerkverteilung ist über ein Leerrohrsystem bereits vorgerichtet.
Für Ihre Autos stehen zwei Außenstellplätze (zzgl. 16.000-€ zusammen) zur Verfügung, die zusätzlich zum Kaufpreis berechnet werden. Auch hier wurde bereits an die Zukunft gedacht. So wird für E-Mobilität eine Ladeinfrastruktur geschaffen, indem ausgewiesene Stellplätze mit einer Wallbox ausgestattet werden.
Der zur Wohnung zugehörige Keller verfügt über einen Stromanschluss und bietet zusätzlichen Stauraum. Für Fahrräder sind oberirdisch Abstellmöglichkeiten vorhanden. |
| Ausstattung: |
KfW – Förderung (KfW 40; Programm 298)
Energieoptimierte Ziegel-Massiv-Bauweise
Energieeffiziente Luft- Wasser - Wärmepumpe
Lüftungsanlage mit Wärmerückgewinnung; bedarfsgesteuertes Lüftungssystem mit
integrierter Sensorsteuerung für CO2, Feuchte und Temperatur
Kunststoff – Fenster mit dreifacher Isolierverglasung
Innenfensterbänke aus Naturstein
Rollläden an allen Fenstern
Innenraumtüren im modernen Design, extra hoch (2,11 cm) nach Mustervorlage
Bad mit bodengleicher Dusche
Waschmaschinenanschluss im Bad
Moderner Fliesenbelag im Bad nach Mustervorlage
Hochwertige Vinyl - Bodenbeläge nach Mustervorlage in allen Räumen (außer Bad)
Fußbodenheizung mit Einzelraumsteuerung
Fernsehanschlüsse im Wohn- und Schlafzimmer
LAN-Verteilung im Wohn- und Schlafzimmer
Videosprechanlage
Großer Balkon mit Lärchenholzbelag (ca. 12,5 qm wird zur Hälfte in der Wohnfläche berücksichtigt)
zur Wohnung zugehöriges Kellerabteil
zwei Außenstellplätze
Ladeinfrastruktur für E-Mobilität
EntkalkungsanlagePV – Anlage (Gemeinschaftseigentum) |
| Pflichtangaben nach EnEV: |
Art des Energieausweises: bedarfsorientiert
Erstellungsdatum des Energieausweises: 02.10.2023
Baujahr Gebäude: 2023
Baujahr Anlagentechnik: 2023
wesentlicher Energieträger: Strom-Mix (Luftwasser-Wärmepumpe)
Energiebedarf: 5,0 kWh/(qm*a)
Effizienzklasse: A+ |
| Lage: |
Verkehrsgünstig gelegen befindet sich der Markt Schierling im Mittelpunkt Regensburg – Landshut – Kelheim - Straubing. Besonders hervorzuheben ist dabei die unmittelbare Anbindung an die Bunderstrasse B15n und die Autobahn A93.
Mit seinen ca. 8.500 Einwohnern entwickelt sich Schierling zu einem begehrten Wohnort. Hohe Lebensqualität in gesunder Umwelt verbindet sich hier mit einer Vielzahl an zukunftsorientierten Branchen, einem wirtschaftlich starken Umfeld und bester Infrastruktur. Dazu zählen neben einer Vielzahl von Einkaufsmöglichkeiten auch Kindergärten, eine Grund- und Mittelschule mit Mittags- und Hausaufgabenbetreuung sowie einer offenen und gebundenen Ganztagsschule und einer umfassenden medizinische Versorgung. |
| Entfernungen: |
„Johaniter“ – Kinderhaus: 100 m
Grund- und Mittelschule: 1,2 km
nächster Supermarkt: 280 m
Bäckerei: 300 m
nächste Bushaltestelle: vor der Haustüre
Autobahnanschluss A93: 12 km
Anschluss B15n: 2,3 km
Regensburg: 24 km
Landshut: 38 km
Straubing: 35 km
Kelheim: 23 km |
| Provisionshinweis: |
Bei Abschluss eines Kaufvertrags wird keine Maklerprovision zur Zahlung fällig. |
| Hinweis: |
Bitte übersenden Sie uns Ihre kompletten Kontaktdaten, damit wir schnellst möglich Ihre Anfrage bearbeiten und mit Ihnen einen Besichtigungstermin vereinbaren können. |
| Haftungsausschluss: |
Alle Angaben sind ohne Gewähr und basieren ausschließlich auf Informationen, die uns von unserem Auftraggeber übermittelt wurden. Wir übernehmen keine Gewähr für die Vollständigkeit, Richtigkeit und Aktualität dieser Angaben. |
| Angebotsvorbehalt: |
Die in diesem Prospekt dargestellten Illustrationen, Computergrafiken, Küchen, Ausstattungen und Einrichtungsgegenstände dienen lediglich der Orientierung und sind daher keinerlei Vertragsbestandteil. Maßgeblich sind ausschließlich die Baubeschreibung, sowie der notarielle Vertrag.
Grundrisse und Visualisierungen entsprechen nicht dem Maßstab. Alle Angaben und Zeichnungen in diesem Prospekt entsprechen dem Planungsstand 2023. Änderungen in Planung und Ausführung bleiben vorbehalten. Für Richtigkeit und Vollständigkeit des Prospekts wird keine Haftung übernommen. |
| Geldwäschegesetz: |
Als Immobilienmakler bin ich lt. Geldwäschegesetz (GwG) dazu verpflichtet, vor Begründung einer Geschäftsbeziehung die Identität der Vertragsparteien festzustellen und zu überprüfen. Bei begründetem Kaufinteresse, ist es daher erforderlich, die relevanten Personalausweisedaten mittels einer Kopie festzuhalten und fünf Jahre aufzubewahren (bei natürlichen Personen). Bei einer juristischen Person, wird zusätzlich ein Handelsregisterauszug benötigt, aus welchem der wirtschaftlich Berechtigte hervorgeht. |
Neueste Kommentare