| Kaufpreis "Stellplatz": |
Stellplätze sind im Kaufpreis enthalten. |
| Wohnfläche: |
425m² |
| Grundstück: |
1508m² |
| Objektbeschreibung: |
Bei dem Objekt handelt es sich um ein voll unterkellertes Büro- Praxisgebäude, das 1983 in solider Ziegelbauweise erstellt wurde. Das Haus steht auf einem ca. 1.508 qm großen Grundstück in einem kleinen, zentral gelegenen Gewerbegebiet.
Die gesamten Räumlichkeiten erstrecken sich über drei Etagen und ein Kellergeschoß, die über das gemeinschaftliche Treppenhaus erreicht werden können. Aufgrund der statischen Gegebenheiten können im OG und DG weitestgehend die vorhandenen Wände entnommen werden, sodass einer persönlichen Gestaltung nichts im Wege steht.
Bei Bedarf kann für eine „Betriebsleiterwohnung“ in der Gemeinde nach „Baunutzungsverordnung“ ein Antrag gestellt werden. Ebenfalls ist eine Erweiterung oder Neubau auf dem großzügigen Grundstück denkbar.
In jedem Geschoss sind Küchenanschlüsse und WC´s vorhanden, sodass pro Etage separate Einheiten gebildet werden können.
Im Jahr 2000 wurde der Wärmeerzeuger bereits auf Gas umgestellt, der das gesamte Gebäude über eine Zentralheizung versorgt. Drei der Keller sind ebenfalls mit Heizkörpern ausgestattet.
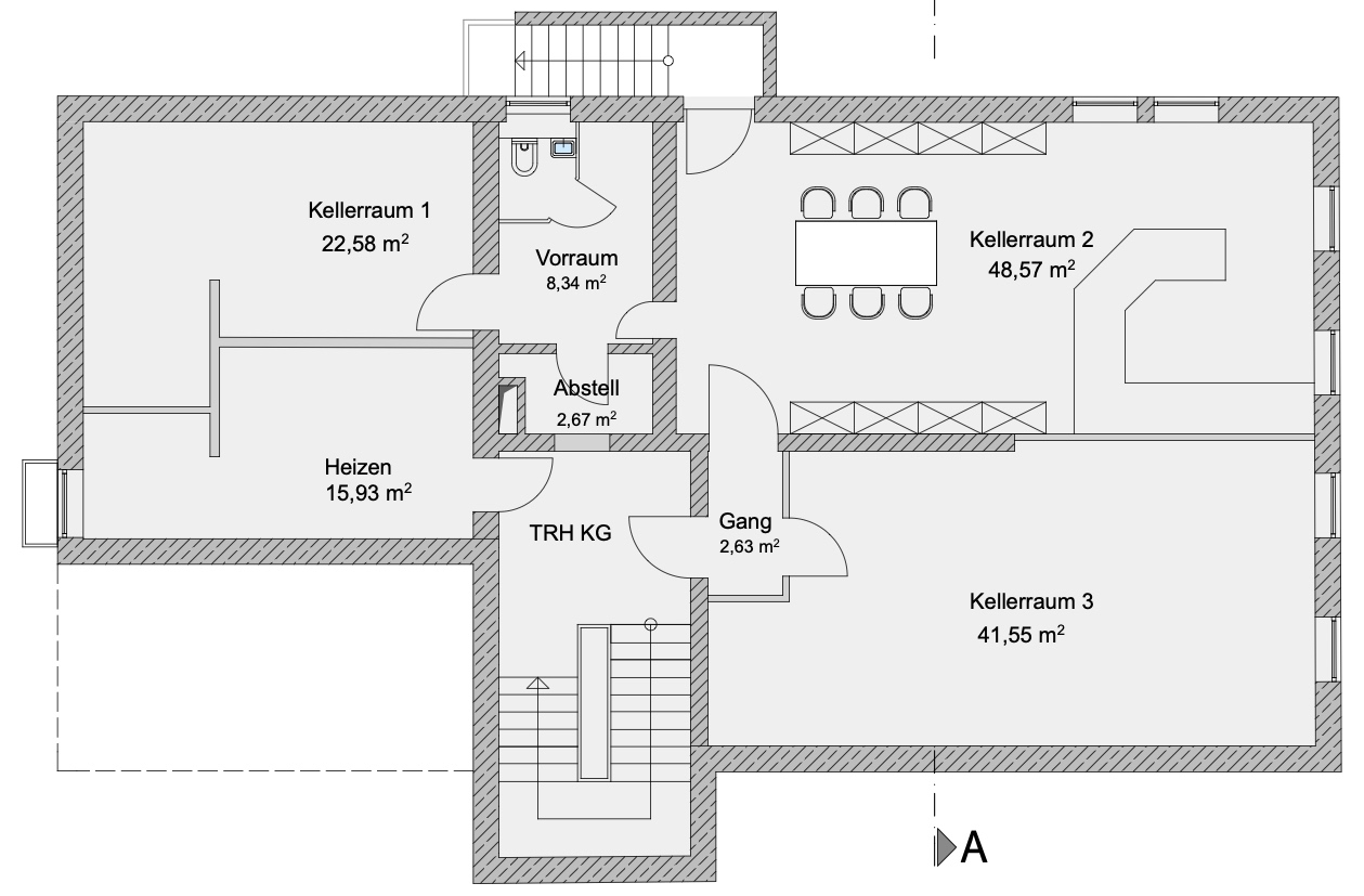
Die insgesamt ca. 425 qm (zzgl. ca. 140 qm Keller) teilen sich wie folgt auf:
Keller: Heizraum, 3 Kellerräume, WC
EG derzeit als Friseursalon genutzt: Empfangsbereich, Friseurladen, WC, Flur, Garderobe, Abstellraum, Sozialraum, WC
OG steht bereits leer: 2x Praxis- Büroraum, Küche, Flur, WC
DG steht bereits leer: mehrere Büros, Teeküche, WC
Ausreichend Stellplätze stehen vor dem Haus und im rückwertigen Bereich zur Verfügung.
Alle zum Verkauf relevanten Unterlagen stehen zur Einsicht zur Verfügung. |
| Ausstattung: |
Gasheizung (Bj.2000)
Kunststofffenster mit 2-fach Verglasung (außer Dachflächenfenster)
WC´s in jeder Etage
WC im Keller
Klimatisierte Räume im Erdgeschoss
Telekomanschluß (kein Glasfaser) bis zu 175 MBit
großes Grundstück mit ca. 1.500 qm
separater Treppenabgang zum Keller
großzügige Stellplatzfläche |
| Pflichtangaben nach EnEV: |
Art des Energieausweises: verbrauchsorientiert
Erstellungsdatum des Energieausweises: 14.11.2024
Baujahr Gebäude: 1983
Baujahr Anlagentechnik: 2000
wesentlicher Energieträger: Erdgas E
Energiebedarf Wärme: 93,5 kWh/(qm*a)
Energiebedarf Strom: 23,2 kWh/(qm*a)
Effizienzklasse: -- |
| Lage: |
Ergolding, eine mittelständige Marktgemeinde im Herzen Niederbayerns.
Mit seinen ca.12.000 Einwohnern schmiegt sich die Gemeinde übergangslos an den Norden der Hochschulstadt Landshut an. Liebenswert und Lebenswert, bietet die Gemeinde für Jung und Alt neben einem abwechslungsreichen Freizeitprogramm auch eine hervorragende Infrastruktur an. Von Sportvereinen bis zum Erlebnisschwimmbad, von zahlreichen Kindergärten über Grund-, Mittel- und Realschule, bis zum Gymnasium, Geschäfte für den täglichen Bedarf, Supermärkte oder vielfältige Ladengeschäfte sind fußläufig oder mit dem sehr gut ausgebauten Busnetz in nur wenigen Minuten zu erreichen.
Verkehrsgünstig gelegen befindet sich der Markt Ergolding im Mittelpunkt des Dreiecks München - Regensburg – Dingolfing. Besonders hervorzuheben ist dabei die unmittelbare Anbindung an die Bunderstrasse B15neu oder die Autobahn A92 über die der Flughafen in nur ca. 25 Minuten erreicht werden kann. |
| Entfernungen: |
Nächste Bushaltestelle: 100 m
Bahnhof: 3,8 KM
Anschlussstelle A92: 2,7 KM |
| Provisionshinweis: |
Bei Abschluss eines Kaufvertrags wird eine vom Käufer zu entrichtende Maklerprovision von 3,57% des Kaufpreises inkl. der gesetzlichen MwSt. zur Zahlung fällig. |
| Hinweis: |
Bitte übersenden Sie uns Ihre kompletten Kontaktinformationen, damit wir schnellst möglich Ihre Anfrage bearbeiten und mit Ihnen einen Besichtigungstermin vereinbaren können. |
| Haftungsausschluss: |
Alle Angaben sind ohne Gewähr und basieren ausschließlich auf Informationen, die uns von unserem Auftraggeber übermittelt wurden. Wir übernehmen keine Gewähr für die Vollständigkeit, Richtigkeit und Aktualität dieser Angaben. |
| Geldwäschegesetz: |
Als Immobilienmakler bin ich lt. Geldwäschegesetz (GwG) dazu verpflichtet, vor Begründung einer Geschäftsbeziehung die Identität der Vertragsparteien festzustellen und zu überprüfen. Bei begründetem Kaufinteresse, ist es daher erforderlich, die relevanten Personalausweisedaten mittels einer Kopie festzuhalten und fünf Jahre aufzubewahren (bei natürlichen Personen). Bei einer juristischen Person, wird zusätzlich ein Handelsregisterauszug benötigt, aus welchem der wirtschaftlich Berechtigte hervorgeht. |
Neueste Kommentare