+49 170 43 28 138
Dupré
  • Home
  • Objekte
  • Über Uns
  • Kontakt
  • +49 170 43 28 138
Seite wählen
  • Home
  • Objekte
  • Über Uns
  • Kontakt
  • +49 170 43 28 138
Zur Übersicht
Galerie Ansehen

Erstbezug, Moderne – 2-Zimmerwohnung im Niedrigenergiehaus!

84069 Schierling

Wohnung zur Miete
Miete zzgl. NK: 700€
Zimmer: 2
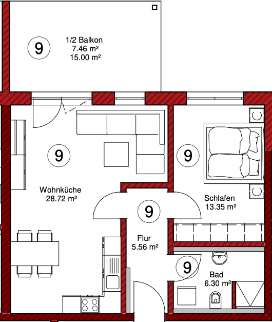
Wohnfläche: 61m²
Bezugstermin: 01.01.2026
Objekt Anfragen
Mehr Details 3
Bezugstermin: 01.01.2026
Wohnfläche: 61m²
Zimmer: 2
Mietkosten: Kaltmiete: 700,- €
Nebenkosten: 150,- €
Außenstellplätze: 60,- € (zusammen)
Mietkaution: 2.280€
Objektbeschreibung: Die Wohnung befindet sich im 1.OG einer modernen Wohnanlage, die in einer zentralen Wohngegend in Schierling erstellt wurde. Bequem kann diese Stufenlos über einen Personenaufzug erreicht werden.

Die gut geschnittenen ca. 61 qm teilen sich wie folgt auf: Bad mit bodengleicher Dusche (innenliegend), Schlafzimmer, Wohn-Ess-Küchenbereich, von dem aus der komplett überdachte Balkon betreten werden kann.

Alle Wohnräume verfügen über Fernsehanschlüsse (SAT-Anlage) und wurden mit Vinyl in Holzoptik ausgelegt. Anschlüsse für eine LAN-Verteilung (Glasfaser) sind ebenfalls vorhanden. Das Bad ist mit modernen Fliesen (60 x 60) versehen und verfügt über einen Waschmaschinenanschluss. Für behagliche Wärme sorgt die Fußbodenheizung, die für jeden Raum über Thermostate separat geregelt werden kann.

Auch auf Folgekosten wurde besonderer Augenmerkt gelegt. Die massive Ziegelbauweise im Verbund mit der energieeffizienten Luft- Wasser- Wärmepumpe und den ausgesuchten Bauelementen führen zu einem sehr guten Energiebedarfswert von nur 9,4 kWh/(qm*a). Dadurch können die hohen Ansprüche des Niedrigenergiestandards „KfW 40“ erfüllt werden.

Durch eine hauseigene PV – Anlage werden die Heizkosten zusätzlich gesenkt.

Für Ihre Autos stehen zwei Außenstellplätze (zzgl. 60-€ mtl. zusammen) zur Verfügung, die zusätzlich zum Mietpreis berechnet werden. Auch hier wurde bereits an die Zukunft gedacht. So wurde für E-Mobilität eine Ladeinfrastruktur geschaffen, indem ausgewiesene Stellplätze mit einer Wallbox ausgestattet werden.

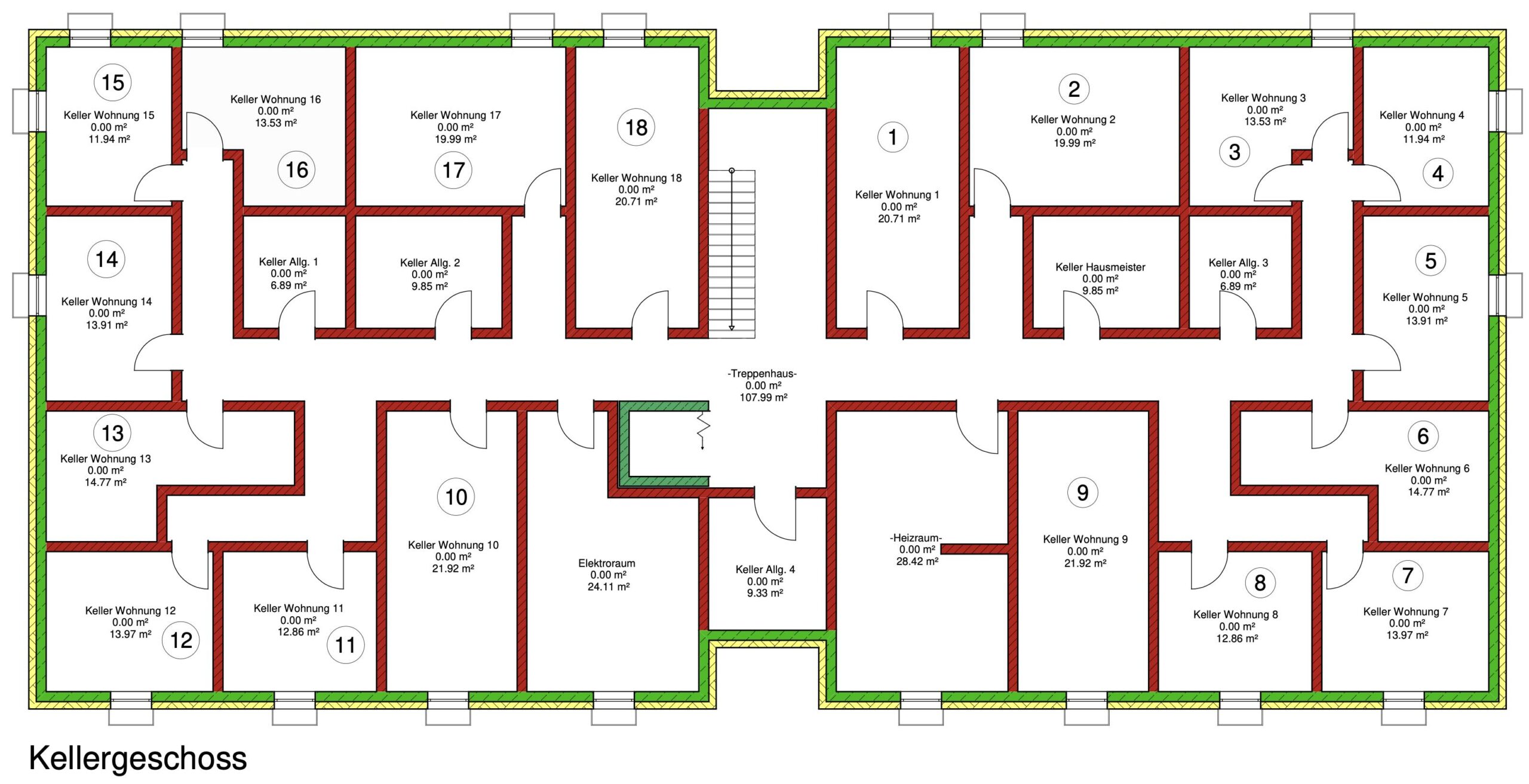
Der zur Wohnung zugehörige Keller verfügt über einen Stromanschluss und bietet zusätzlichen Stauraum. Für Fahrräder sind oberirdisch Abstellmöglichkeiten vorhanden.

Haustiere sind leider nicht erwünscht.

Voraussetzung für eine erfolgreiche Vermietung ist eine Schufa Auskunft ohne Negativmerkmal.
Ausstattung:
  • KfW 40
  • Energieoptimierte Ziegel-Massiv-Bauweise
  • Energieeffiziente Luft- Wasser - Wärmepumpe
  • Lüftungsanlage mit Wärmerückgewinnung; bedarfsgesteuertes Lüftungssystem mit integrierter Sensorsteuerung für CO2, Feuchte und Temperatur
  • Kunststoff – Fenster mit dreifacher Isolierverglasung
  • Innenfensterbänke aus Naturstein
  • Rollläden an allen Fenstern
  • Innenraumtüren im modernen Design, extra hoch (2,11 cm)
  • Waschmaschinenanschluss im Bad
  • Moderner Fliesenbelag im Bad
  • Hochwertige Vinyl - Bodenbeläge in allen Räumen (außer Bad)
  • Bad mit bodengleicher Dusche
  • Fußbodenheizung mit Einzelraumsteuerung
  • Fernsehanschlüsse im Wohn- und Schlafzimmer
  • LAN-Verteilung im Wohn- und Schlafzimmer (Glasfaser ist verfügbar)
  • Videosprechanlage
  • Großer Balkon mit Lärchenholzbelag (ca. 15 qm wird zur Hälfte in der Wohnfläche berücksichtigt)
  • zur Wohnung zugehöriges Kellerabteil
  • zwei Außenstellplätze
  • Ladeinfrastruktur für E-Mobilität
  • Entkalkungsanlage
  • PV – Anlage
  • Pflichtangaben nach EnEV:
  • Art des Energieausweises: bedarfsorientiert
  • Erstellungsdatum des Energieausweises: 18.01.2024
  • Baujahr Gebäude: 2023
  • Baujahr Anlagentechnik: 2023
  • wesentlicher Energieträger: Strom-Mix (Luftwasser-Wärmepumpe)
  • Energiebedarf: 9,4 kWh/(qm*a)
  • Effizienzklasse: A+
  • Lage: Verkehrsgünstig gelegen befindet sich der Markt Schierling im Mittelpunkt Regensburg – Landshut – Kelheim - Straubing. Besonders hervorzuheben ist dabei die unmittelbare Anbindung an die Bunderstrasse B15n und die Autobahn A93.

    Mit seinen ca. 8.500 Einwohnern entwickelt sich Schierling zu einem begehrten Wohnort. Hohe Lebensqualität in gesunder Umwelt verbindet sich hier mit einer Vielzahl an zukunftsorientierten Branchen, einem wirtschaftlich starken Umfeld und bester Infrastruktur. Dazu zählen neben einer Vielzahl von Einkaufsmöglichkeiten auch Kindergärten, eine Grund- und Mittelschule mit Mittags- und Hausaufgabenbetreuung sowie einer offenen und gebundenen Ganztagsschule und einer umfassenden medizinische Versorgung.
    Entfernungen:
  • „Johaniter“ – Kinderhaus: 100 m
  • Grund- und Mittelschule: 1,2 km
  • nächster Supermarkt: 280 m
  • Bäckerei: 300 m
  • nächste Bushaltestelle: vor der Haustüre
  • Autobahnanschluss A93: 12 km
  • Anschluss B15n: 2,3 km
  • Regensburg: 24 km
  • Landshut: 38 km
  • Straubing: 35 km
  • Kelheim: 23 km
  • Provisionshinweis: Bei Abschluss eines Mietvertrags wird keine Maklerprovision zur Zahlung fällig.
    Hinweis: Bitte übersenden Sie uns Ihre kompletten Kontaktinformationen, damit wir schnellst möglich Ihre Anfrage bearbeiten und mit Ihnen einen Besichtigungstermin vereinbaren können.
    Haftungsausschluss: Alle Angaben sind ohne Gewähr und basieren ausschließlich auf Informationen, die uns von unserem Auftraggeber übermittelt wurden. Wir übernehmen keine Gewähr für die Vollständigkeit, Richtigkeit und Aktualität dieser Angaben.

    Neueste Beiträge

    • Gemütliche Doppelhaushälfte in Essenbach!
    • Erstbezug – Schöne 3 Zimmer Wohnung mit Balkon, Aufzug!
    • Erstbezug – Zentrumsnahe 3-Zimmer Wohnung mit Balkon!
    • Erstbezug – Zentrumsnahe 3-Zimmer Wohnung mit Balkon!
    • Gesundes Wohnen – Moderne 3-Zimmer Wohnung im Niedrigenergiehaus (Massivholz)

    Neueste Kommentare

      • 2020 © DUPRÉ IMMOBILIEN
      • Impressum
      • Datenschutz
      • T.

        +49 (0)170 43 28 138
      • E.

        info@dupre-immo.de